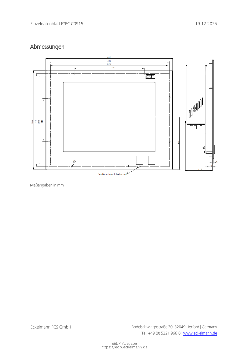
Vollbildanzeige beenden