Speichern
Abbrechen
Groß-/Kleinschreibung wird ignoriert
Phrasensuche: "Diese Phrase suchen"
Platzhalter für ein Zeichen: Suchb?griff
Platzhalter für viele Zeichen: Suchbegr*
Logische Verknüpfungen: UND ODER ....
Ausschluss von Wort2: Wort1 -Wort2
Definierter Abstand: "Wort1 Wort2"~5
Registrieren
Anmelden
Deutsch
English
Favoriten
...
Maschinenautomation
Kälte- und Gebäudeleittechnik
/
E*LDS-System
Virtus Caelum Apps
Virtus Tectum Grid
Systemzentrale & Bedienterminal
Verbundsteuerungen
Temperaturanzeigen &
Bediengeräte
Wärmerückgewinnung / Gebäudeautomatisierung / Sonderfunktionen
PC-Software LDSWin
Empfangsmodul & Funksensoren
Gateways
Elektrokonstruktion
FAQ E*LDS
E*LDS erklärt sich selbst
LDSWeb
E*LDS
Schulung
E°EDP Offline-Archiv
Abgekündigte Produkte
Kühlstellenregler
/
Virtus LINE VCC 500
UA 213 S SemiPlugin
UA 30-Reihe
ABGEKÜNDIGT- UA 300-Reihe
UA 400-Reihe
/
UA 400
UA 410 D
UA 410 L
UA 412 S / UA 413 S
CE Konformitätserklärung UA 400-Reihe
UA 400 E / UA 401 E / UA 410 E
/
Zubehör Kühlstellenregler
FAQ Kühlstellenregler ..
Nützliche Helfer Kühlstellenregler
Temperaturanzeigen &
Bediengeräte
CAN-Bus
E*COP+ Saugdruck-Optimierung
Produktfotos UA 400-Reihe
Firmware UA 400 E / UA 401 E / UA 410 E
/
2. Generation - DIP-Schalter 9x
1. Generation - DIP-Schalter 8x
/
UA 400 E / UA 410 E Betriebsanleitung - V2.00
Versionshinweise UA 400 E / UA 410 E V2.07
Kühlstellenregler wird nicht erkannt unter Windows
UA 400 E / UA 401 E / UA 410 E Operating instruction
Versionieren
Ersetzen
UA 400 E / UA 401 E / UA 410 E Operating instruction
(S. 26/429)
Weitere Angaben
UA 400 E / UA 401 E / UA 410 E Operating instruction
(S. 26/429)
Weitere Angaben
UA 400 E / UA 401 E / UA 410 E Operating instruction
(S. 26/429)
Weitere Angaben
Info
1
2
3
4
5
6
7
8
9
10
11
12
13
14
15
16
17
18
19
20
21
22
23
24
25
26
27
28
29
30
31
32
33
34
35
36
37
38
39
40
41
42
43
44
45
46
47
48
49
50
51
52
53
54
55
56
57
58
59
60
61
62
63
64
65
66
67
68
69
70
71
72
73
74
75
76
77
78
79
80
81
82
83
84
85
86
87
88
89
90
91
92
93
94
95
96
97
98
99
100
101
102
103
104
105
106
107
108
109
110
111
112
113
114
115
116
117
118
119
120
121
122
123
124
125
126
127
128
129
130
131
132
133
134
135
136
137
138
139
140
141
142
143
144
145
146
147
148
149
150
151
152
153
154
155
156
157
158
159
160
161
162
163
164
165
166
167
168
169
170
171
172
173
174
175
176
177
178
179
180
181
182
183
184
185
186
187
188
189
190
191
192
193
194
195
196
197
198
199
200
201
202
203
204
205
206
207
208
209
210
211
212
213
214
215
216
217
218
219
220
221
222
223
224
225
226
227
228
229
230
231
232
233
234
235
236
237
238
239
240
241
242
243
244
245
246
247
248
249
250
251
252
253
254
255
256
257
258
259
260
261
262
263
264
265
266
267
268
269
270
271
272
273
274
275
276
277
278
279
280
281
282
283
284
285
286
287
288
289
290
291
292
293
294
295
296
297
298
299
300
301
302
303
304
305
306
307
308
309
310
311
312
313
314
315
316
317
318
319
320
321
322
323
324
325
326
327
328
329
330
331
332
333
334
335
336
337
338
339
340
341
342
343
344
345
346
347
348
349
350
351
352
353
354
355
356
357
358
359
360
361
362
363
364
365
366
367
368
369
370
371
372
373
374
375
376
377
378
379
380
381
382
383
384
385
386
387
388
389
390
391
392
393
394
395
396
397
398
399
400
401
402
403
404
405
406
407
408
409
410
411
412
413
414
415
416
417
418
419
420
421
422
423
424
425
426
427
428
429
1
2
3
4
5
6
7
8
9
10
11
12
13
14
15
16
17
18
19
20
21
22
23
24
25
26
27
28
29
30
31
32
33
34
35
36
37
38
39
40
41
42
43
44
45
46
47
48
49
50
51
52
53
54
55
56
57
58
59
60
61
62
63
64
65
66
67
68
69
70
71
72
73
74
75
76
77
78
79
80
81
82
83
84
85
86
87
88
89
90
91
92
93
94
95
96
97
98
99
100
101
102
103
104
105
106
107
108
109
110
111
112
113
114
115
116
117
118
119
120
121
122
123
124
125
126
127
128
129
130
131
132
133
134
135
136
137
138
139
140
141
142
143
144
145
146
147
148
149
150
151
152
153
154
155
156
157
158
159
160
161
162
163
164
165
166
167
168
169
170
171
172
173
174
175
176
177
178
179
180
181
182
183
184
185
186
187
188
189
190
191
192
193
194
195
196
197
198
199
200
201
202
203
204
205
206
207
208
209
210
211
212
213
214
215
216
217
218
219
220
221
222
223
224
225
226
227
228
229
230
231
232
233
234
235
236
237
238
239
240
241
242
243
244
245
246
247
248
249
250
251
252
253
254
255
256
257
258
259
260
261
262
263
264
265
266
267
268
269
270
271
272
273
274
275
276
277
278
279
280
281
282
283
284
285
286
287
288
289
290
291
292
293
294
295
296
297
298
299
300
301
302
303
304
305
306
307
308
309
310
311
312
313
314
315
316
317
318
319
320
321
322
323
324
325
326
327
328
329
330
331
332
333
334
335
336
337
338
339
340
341
342
343
344
345
346
347
348
349
350
351
352
353
354
355
356
357
358
359
360
361
362
363
364
365
366
367
368
369
370
371
372
373
374
375
376
377
378
379
380
381
382
383
384
385
386
387
388
389
390
391
392
393
394
395
396
397
398
399
400
401
402
403
404
405
406
407
408
409
410
411
412
413
414
415
416
417
418
419
420
421
422
423
424
425
426
427
428
429
Groß-/Kleinschreibung wird ignoriert
Phrasensuche: "Diese Phrase suchen"
Platzhalter für ein Zeichen: Suchb?griff
Platzhalter für viele Zeichen: Suchbegr*
Logische Verknüpfungen: UND ODER ....
Ausschluss von Wort2: Wort1 -Wort2
Definierter Abstand: "Wort1 Wort2"~5
Inhaltsverzeichnis
o e m e n u o e m e n u o e m e n u
t components
ESD - Rules for handling and working
Abbreviations used
System Design of UA 4xx E
Application
Hardware
Application of UA 4xx E
Versions
Controller types
Updating firmware
Function UA 4xx E
Starting characteristics
First start- reset controller to factory settings
Restart - restart of the controller
Temperature zones
CAN bus mode
Standalone operation
Standalone operation using evaporator inlet sensors
Standalone operation using activated local pressure transmitter
Selection of the sensor type
Necessary and optional sensors
Description of controller functions
Cooling
Temperature control
Control of the expansion valves
Control of continuous motor expansion valves
Enable relays for motor expansion valves
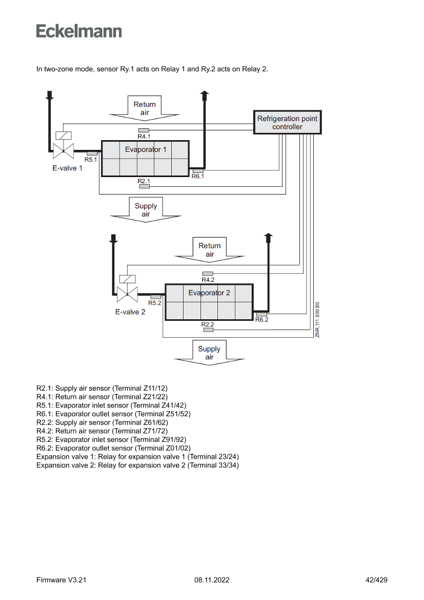
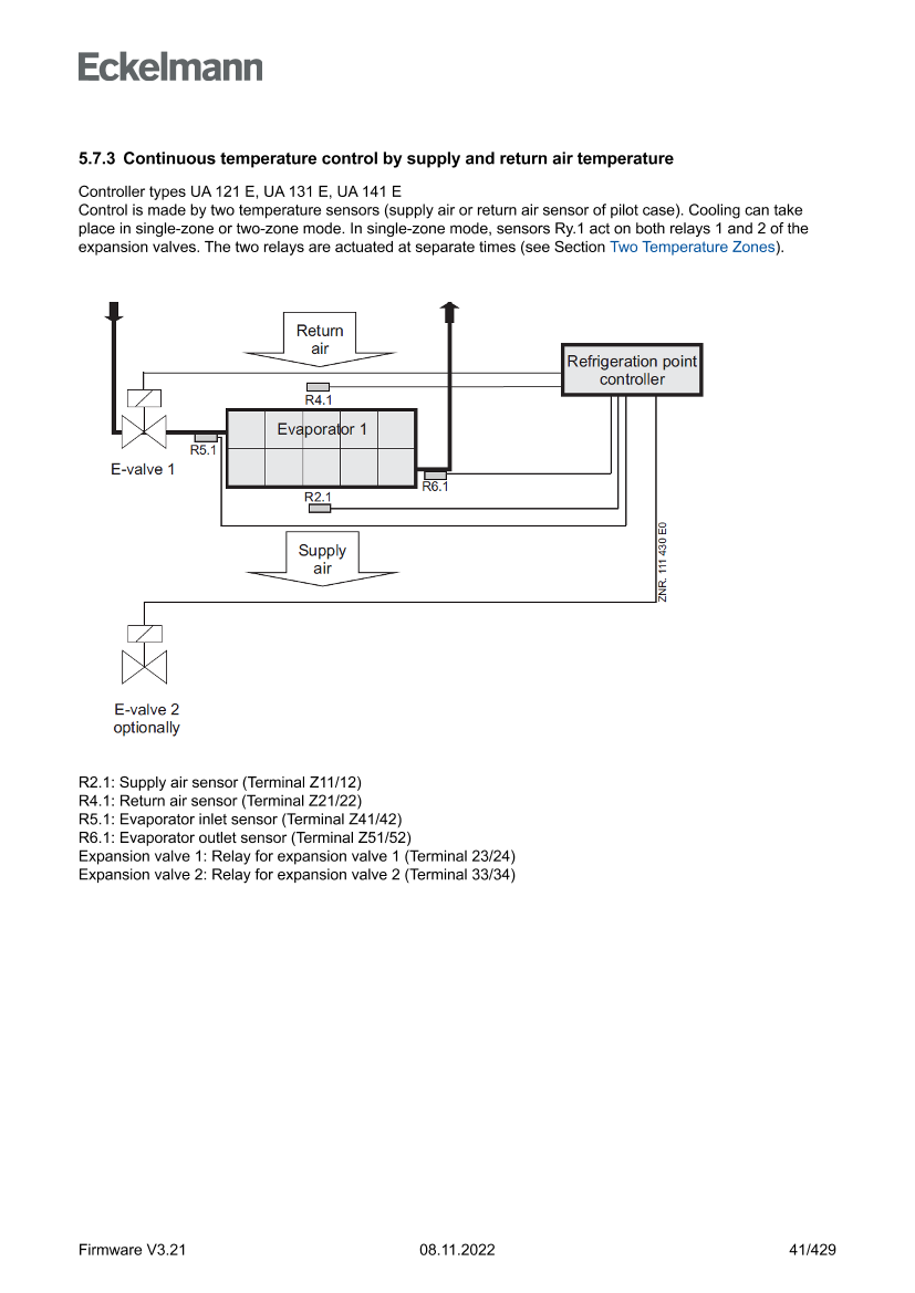
Continuous temperature control by supply and return air temperature
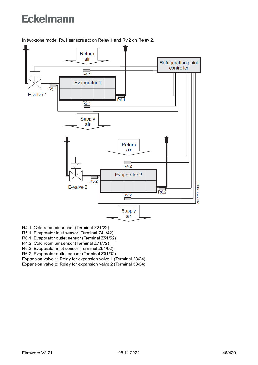
Continuous temperature control by coldroom sensor
Continuous temperature monitoring using refrigerant temperature sensor
On-off control
Superheat control
Connection of pressure transmitters / humidity sensors
Sending and receiving the analogue values via CAN bus
Humidity control
Regulation according to tc / high pressure
Dynamic determination of the tc setpoint
Fixed opening degree in the pump down / injection phase
Fixed valve opening degree for servicing purposes
Limiting the Opening Degree
MOP function
Run time limitation / continuous run monitoring of the regulation
Forced cooling (except UK 100 E, KR 160 E)
Heating circuit control
Emergency Op.
Operation with up to four return air sensors - only UA 131 E LS
Defrosting
Types of defrosting – an overview
Defrosting in general
Discharge gas defrosting (hot gas defrosting)
Master/slave mode – defrost synchronisation via CAN bus
Master/slave mode – defrost synchronisation via wiring
Master-slave mode for the synchronisation of the zones of a single contr.
Master-slave mode for the synchronisation of several controllers
Necessary settings for the master / slave mode
Special features and constraints
Consecutive defrost (CD) via CAN bus
Alarm relay
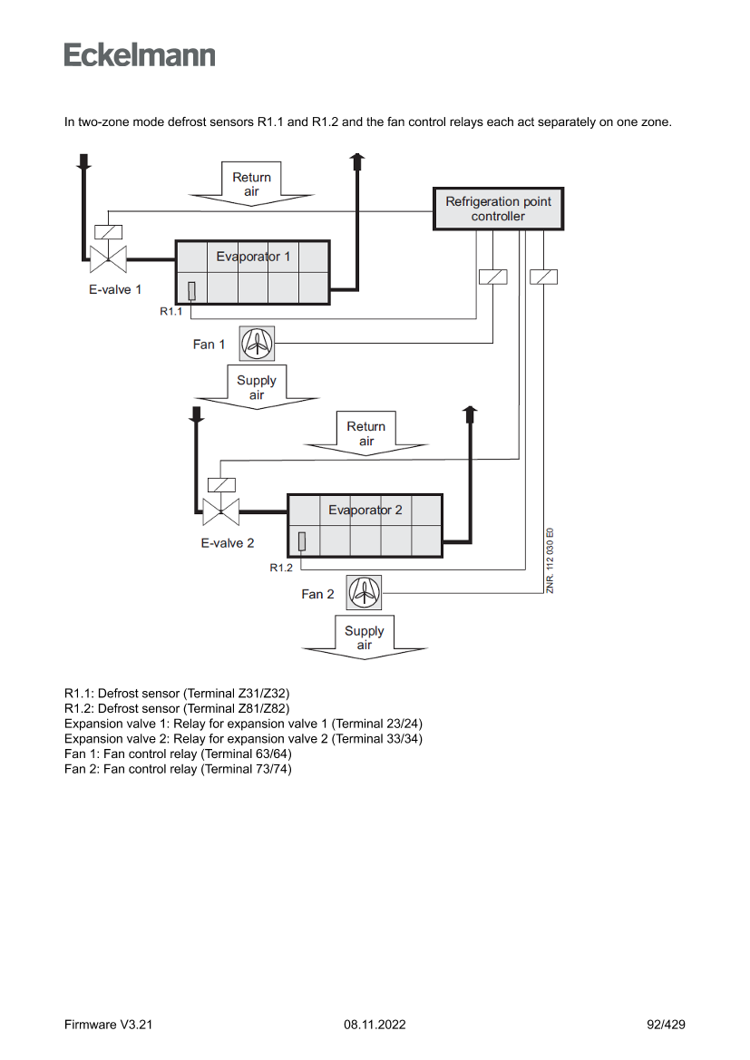
Fan control with case and coldroom controllers
Fan control on multidecks - controller type UA 121 E
Fan control - controller type UA 131 E
Fan control - controller type UA 131 E LS with enhanced fan control
Fan control - controller type UA 141 E
Fan control with coldroom controllers
Coldroom with defrost heater (controller type UR 141 TE)
Coldroom without defrost heater - controller type UR 141 NE
Heating circuit - contr. type UR 141 TE, UR 141 NE in single-zone operation
Digital inputs
Defrosting via external switch / timer
Setpoint toggle via external switch / timer
Manual shutdown
Registration of external alarms (e.g. CO2 alarm)
Automatic on/off
Door contact for room controllers
Setpoint toggle (day/night operation)
Function of the analogue outputs 0..10 V.
Light control
Frame and pane heater
Compressor control via consumers
Refrigeration point disabling
E*COP+
Suction pressure shift
Emergency power operation
Temperature Displays
Temperature Display VDD 500
BT 30 temperature display
Operating data archiving
Temperature recording
Temperature recording to EU Regulation 37/2005
Recording of t0, tc and relative humidity
Recording of messages and alarms
Actual value archiving with higher accuracy (15 sec)
Installation and Startup of UA 4xx E
Installation
DIN rail mounting of the controller for electronic valves
Mounting on the DIN rail
Disassembling from the DIN rail
Handling of the spring terminals
Basic settings
Setting the CAN bus address
Setting the controller type and other functions
Terminal assignment for 230 V AC power supply
Status LEDs
Basic configuration of the controller
Naming of the controller
Battery replacement
Firmware update
Requirements for firmware update
Installing firmware update
Update for controller with 8-pole DIP switch
Update for controller with 9-pole DIP switch
Rectification of driver problems
Pin and Terminal Assignments of UA 4xx E
Terminal diagram
Terminal assignment of the 230 V AC power supply
Terminal assignment of the 230 V AC relay outputs
Mode of operation of the relay and transistor outputs
Terminal assignment of the 230 V AC digital inputs
Terminal assignment of the 0..10 V analogue outputs
Terminal assignment of the CAN bus terminals
Terminal assignment of the 24 V DC transistor outputs
Terminal assignment of the DISPLAY interface
Connection VDD 500
Connection BT 300 and/or BT 30
Terminal assignment of the 4..20 mA analogue inputs
Terminal assignment of the analogue inputs for temperature sensors
Explanations for sensor positioning
Sensor identification
Assignment of the USB port
Wiring of the master-slave function for defrost synchronisation
Operation UA 4xx E
Operation possibilities
Local operation with a BT 300 x operator interface
Lock-down of the setpoint change
Remote control via a terminal
Menus and operating screens
Calling the controller menu via remote control
System Centre
Store computer CI 3x00 / operator terminal AL 300
Deactivating the input lock-down
System centre CI 4x00..
Store computer CI 3x00 / operator terminal AL 300
Activating service mode
System centre Service-Mode
Store computer CI 3x00 - Service-Mode
Menu Structure UA 4xx E
Controller type UA 121 E - menu tree
Main menu UA 121 E
Menu 1 Actual Values UA 121 E
Menu 2 Setpoints UA 121 E
Menu 3 Clock UA 121 E
Menu 4 Messages UA 121 E
Menu 5 Archive UA 121 E
Menu 6 Configuration UA 121 E
Contr. Type UA 131 E / UA 131 E LS - Menu tree
Main Menu UA 131 E LS
Menu 1 Actual Values UA 131 E LS
Menu 2 Setpoints UA 131 E LS
Menu 3 Clock UA 131 E LS
Menu 4 Messages UA 131 E LS
Menu 5 Archive UA 131 E LS
Menu 6 Configuration UA 131 E LS
Contr. Type UA 141 E - Menu tree
Main Menu UA 141 E
Menu 1 Actual Values UA 141 E
Menu 2 Setpoints UA 141 E
Menu 3 Clock UA 141 E
Menu 4 Messages UA 141 E
Menu 5 Archive UA 141 E
Menu 6 Configuration UA 141 E
Contr. Type UR 141 NE - Menu tree
Main Menu UR 141 NE
Menu 1 Actual Values UR 141 NE
Menu 2 Setpoints UR 141 NE
Menu 3 Clock UR 141 NE
Menu 4 Messages UR 141 NE
Menu 5 Archive UR 141 NE
Menu 6 Configuration UR 141 NE
Contr. Type UR 141 TE - Menu tree
Main Menu UR 141 TE
Menu 1 Actual Values UR 141 TE
Menu 2 Setpoints UR 141 TE
Menu 3 Clock UR 141 TE
Menu 4 Messages UR 141 TE
Menu 5 Archive UR 141 TE
Menu 6 Configuration UR 141 TE
Contr. Type UK 100 E - Menu tree
Main Menu UK 100 E
Menu 1 Actual Values UK 100 E
Menu 2 Setpoints UK 100 E
Menu 3 Clock UK 100 E
Menu 4 Messages UK 100 E
Menu 5 Archive UK 100 E
Menu 6 Configuration UK 100 E
Controller type KR 160 E - menu tree
Main Menu KR 160 E
Menu 1 Actual Values KR 160 E
Menu 2 Setpoints KR 160 E
Menu 3 Clock KR 160 E
Menu 4 Messages KR 160 E
Menu 5 Archive KR 160 E
Menu 6 Configuration KR 160 E
Decommissioning and disposal
Decommissioning / Demounting
Disposal
Alarms and messages UA 4xx E
Alarm signaling and monitoring
Coldroom door open alarm
High or low temperature alarm
Low temperature monitoring t0
Alarm in the event of the absence of a defrost
Alarm in the event of the minimum permitted superheat being undershot
Sensor break alarm
Suppression of sensor break alarm during defrosting
No required sensor alarm
Stall detect alarm
Implausible opening position alarm
Hardware alarm
Individual allocation of priorities
Alarm routes
Termination of alarm
Messages
Transient alarms and messages
Message log
Technical Data of UA 4xx E
Electrical data
Mechanical Data
Mechanical data of the temperature sensor L243 / 5K3A1
Order numbers and accessories of UA 4xx E
Case Controller
Components
Versionen
UA 400 E / UA 410 E Betriebsanleitung - V2.00 - 27.01.2020 15:18 Uhr
UA 400 E / UA 410 E Operating instruction - V2.00 - 27.01.2020 15:18 Uhr
Notice d'instructions UA 400 E / UA 410 E - V2.00 - 27.01.2020 15:18 Uhr
Erweiterte Optionen anzeigen
Auf Vorschauseite im EDP verlinken
Direkt auf die Datei verlinken
Spracheinstellung des Benutzers (Browsereinstellung)
Englisch
Deutsch
Französisch
Neuste Version
:
UA 400 E / UA 410 E ­Betriebsanleitung - V2.00
:
UA 400 E / UA 410 E ­Operating instruction - V2.00
:
Notice d'instructions UA 400 E / UA 410 E - V2.00
Dieser QR-Code verweist auf den angezeigten Permanenten Link.
Metadaten einlesen
Seiten-Vorschaubilder generieren
Verlinkungen generieren
Indexieren
Benachrichtigung nochmal versenden
Einen oder mehrere Benutzer angeben
Einer Gruppe Rechte zuweisen
Prospect
Customer
Internal
Adressaten über Rechtevergabe benachrichtigen?
Kopie der Benachrichtigungen an mich senden
Teilen
Rechte vergeben